小猪视频官网在线观看视频,小猪视频免费观看视频下载,小猪视频黄色,小猪视频APP无限次数安装IOS

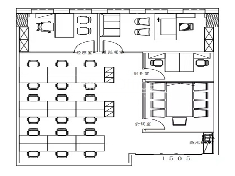
达邦协作广场精装修带家具270平,地铁口至大户型

分享
5.75 万元/月
  • 单价:7.0元/㎡/天
  • 物业费:31.0元/㎡/月
270㎡
建筑面积
20-30人
容纳工位
带装修家具
装修
  • 闸 北-上海火车站
  • 1号线-上海火车站、3号线-上海火车站、12号线-汉中路
  • 达邦协作广场

房源专属顾问为您服务

徐佳乐Jerry

13052210023
预约看房

公共交通

Public transit

达邦协作广场

闸 北上海火车站恒丰路399号

网站地图