小猪视频官网在线观看视频,小猪视频免费观看视频下载,小猪视频黄色,小猪视频APP无限次数安装IOS

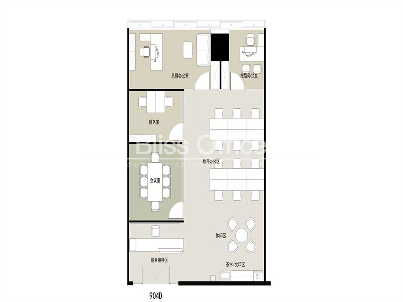
嘉里不夜城180平业主直租,订制装修,高区景观

分享
2.30 万元/月
  • 单价:4.2元/㎡/天
  • 物业费:28.0元/㎡/月
180㎡
建筑面积
15-20人
容纳工位
带装修家具
装修
  • 闸 北-上海火车站
  • 1号线-上海火车站、3号线-上海火车站、4号线-上海火车站
  • 嘉里不夜城

房源专属顾问为您服务

徐佳乐Jerry

13052210023
预约看房

公共交通

Public transit

嘉里不夜城

闸 北上海火车站天目西路218号

网站地图