小猪视频官网在线观看视频,小猪视频免费观看视频下载,小猪视频黄色,小猪视频APP无限次数安装IOS

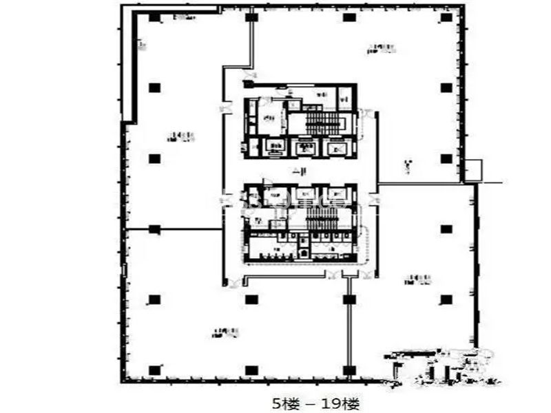
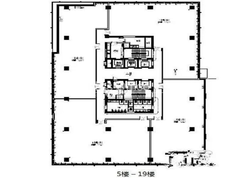
H88越虹广场800平半层出租 正对电梯厅 高得房率

分享
14.60 万元/月
  • 单价:6.0元/㎡/天
  • 物业费:26.0元/㎡/月
800㎡
建筑面积
100-120
容纳工位
标准交房
装修
  • 徐 汇-漕河泾
  • 9号线-桂林路、15号线-桂林路
  • H88越虹广场

房源专属顾问为您服务

江帅军Evan

13052210023
预约看房

公共交通

Public transit

H88越虹广场

徐 汇漕河泾虹漕路88号

网站地图